Введіть Ваш номер телефону
Вам незабаром зателефонують
З магазину в Києві вже завтра
Відправимо завтра (безкоштовно)
Відправимо завтра (безкоштовно)
Відправимо завтра (безкоштовно)
120 днів для обміну та повернення!
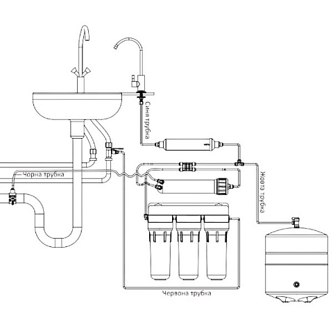
Найбільш технологічним методом домашньої очищення води на даний момент є технологія зворотного осмосу. Жоден побутовий фільтр не зможе забезпечити кращу або навіть порівнянну ступінь очищення води, ніж у систем зворотного осмосу. Різноманітність видаляються забруднень вражає, системи зворотного осмосу видаляють з води до 99,8% всіх забруднень, в тому числі велику частину вірусів і бактерій.
Основну очищення води виконує напівпроникна мембрана з розміром пір 0,0001 мкм, завдяки такому розміру, через пори проходить молекула води, а 99,8% розчинених домішок затримується на поверхні мембрани. Однак якщо воду попередньо не підготували, мембрана все також буде справлятися з очищенням води, але прослужить набагато менше заявленого терміну експлуатації. Для цього фільтри зворотного осмосу оснащуються блоком підготовки води. Після очищення мембраною зворотного осмосу вода надходить в накопичувальний бак, для того щоб у вас завжди була чиста води. Перед подачею води з накопичувального бака в кран чистої води, вона проходить полірування картриджем постфільтром.
Очищення води:

Купив цей фільтр, бо старий зламався. Aqualite працює чудово. Вода чиста, і це головне. Встановлення не спричинило жодних проблем.
Чудовий фільтр, установка зайняла близько 40 хвилин (це зі зняттям та свердлінням мийки з нержавіючої сталі). Великий плюс - це комплектність, нічого докупувати не довелося.
Встановлення дежк просте, і він ефективно очищає воду від різних забруднень. Рекомендую цей фільтр для покращення якості питної води вдома.
Купил тут. Пользуюсь уже 2 месяца. Раньше стоял осмос фильтр1, но решил поменять так как прошло больше 5 лет. Что понравилось: 1. Качество колб + 2 резиновых кольца 2. Качество сборки 3. Красивый кран - посмотрим сколько проработает 4. Оригинальная мембрана Филмтек. Я так понимаю, что теперь это большая редкость. Бак обычный пластиковый. Самое главное это вода, она как всегда прекрасная после осмоса.
Селективність - 97,0 - 98,0%, Виробник - Україна, Розмір, мм - In-line , Тип води - Холодна вода
Виробник - Україна, Розмір, мм - Ø60x250, Тип води - Холодна вода
Виробник - Україна, Розмір, мм - Ø60x250, Тип води - Холодна вода, Ресурс - 10000 л
Виробник - Україна, Розмір, мм - In-line , Тип води - Холодна вода, Ресурс - 6000 л
Виробник - Україна, Розмір, мм - Ø60x250, Тип води - Холодна вода, Ресурс - 10000 л
Виробник - Україна, Розмір, мм - Ø60x250, Тип води - Холодна вода, Ресурс - 10000 л
Виробник - Україна, Призначення - Механічний, Розмір, мм - Ø60x250, Ресурс - 10000 л
Виробник - Україна, Призначення - Вугільний, Розмір, мм - Ø60x250, Ресурс - 6000 л
Витратні матеріали
Селективність - 97,0 - 98,0%, Виробник - Україна, Розмір, мм - In-line , Тип води - Холодна вода
Виробник - Україна, Розмір, мм - Ø60x250, Тип води - Холодна вода
Виробник - Україна, Розмір, мм - Ø60x250, Тип води - Холодна вода, Ресурс - 10000 л
Виробник - Україна, Розмір, мм - In-line , Тип води - Холодна вода, Ресурс - 6000 л
Виробник - Україна, Розмір, мм - Ø60x250, Тип води - Холодна вода, Ресурс - 10000 л
Виробник - Україна, Розмір, мм - Ø60x250, Тип води - Холодна вода, Ресурс - 10000 л
Виробник - Україна, Призначення - Механічний, Розмір, мм - Ø60x250, Ресурс - 10000 л
Виробник - Україна, Призначення - Вугільний, Розмір, мм - Ø60x250, Ресурс - 6000 л
Комплектуючі